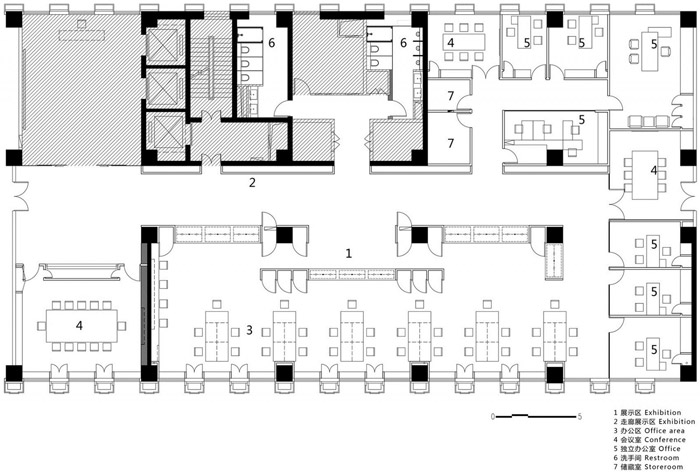
寫字樓辦公室設計面積990平方,寫字樓辦公室建筑結構為框架結構,場地中心內部有四個一米見方的柱子,設計師需要做的就是,打造一個結合展示、辦公于一體的寫字樓辦公場所。
▼寫字樓辦公室平面圖

▼寫字樓辦公室入口

▼寫字樓辦公室過道

▼寫字樓辦公室展示區

▼寫字樓辦公室走廊

▼寫字樓辦公室辦公區

▼寫字樓辦公室展示區

▼寫字樓辦公室辦公區

▼寫字樓辦公室辦公區

▼寫字樓辦公室辦公區

▼寫字樓辦公室辦公區

本次寫字樓辦公室裝修效果圖講解到此結束,辦公功能主要由辦公,產品展示,影像展示,產品互動展示相互構成,設計師需要圍繞這一現實要求,打造一個獨立而又統一的辦公空間。
本案例作者:北京班得建筑設計有限公司